Einrichtung: Lagermittel
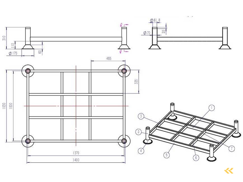
offener Gitterrahmen; feuerverzinkt Herz bis Mitte Größe 1370x1000mm; geeignet für 1 Blockpalette oder 1 Europalette; geeignet für Rungen 60,3 mm; ausgestattet mit 4 Stahlrungen von Ø60x3,0x1000mm pro Stapeljoch; 7562
| Kategorie | Sonstige hubstamplers |
| Referenz | A1-35210-51 |
| Breite | 14.000 mm |
| Länge | 10.300 mm |











